当前位置: 主页 > 冀财网 > 家居 >

这栋三层英式别墅,处处都是有仪式感的生活细节

来源:互联网 2020-09-09 10:01:20  阅读:-
导读: 

英式建筑,就像英国老贵族一样让你觉得处处都是细节讲究、讲究美学的视觉传达,充满仪式感。这栋三层英式别墅就是如此,南立面对称设计,装饰有细节、精致到位;室内布局规整、空间格局完整,无不透露着细节思考、美学传达的设计。

这样的英式自建别墅不多见,但肯定是盖房的又一绝佳选择~

这栋三层英式别墅,处处都是有仪式感的生活细节

南立面透视

这栋三层英式别墅,处处都是有仪式感的生活细节

地下层平面:主要是休闲娱乐空间与储藏空间,包括影音室、健身房、酒窖、储藏室、工具房等,东边还做了采光天井,让空间有自然采光;

这栋三层英式别墅,处处都是有仪式感的生活细节

一层平面:南边独立门厅入户,进门后两层挑空大厅,气派非常,两边是大小会客厅,整体开敞大空间;北边厨房、餐厅、楼梯间和一间卧室,厨房设门通往后院;东边设侧门,设门厅和小玄关,整体布局舒适完整,生活就该有仪式感~

这栋三层英式别墅,处处都是有仪式感的生活细节

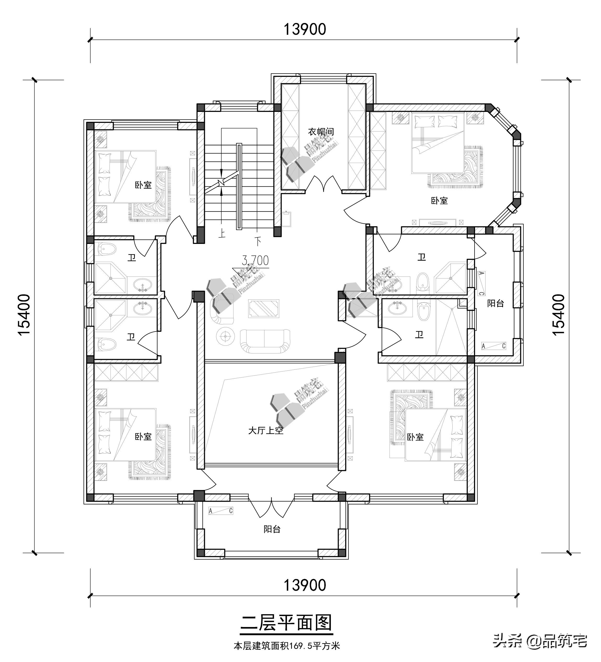
二层平面:楼梯上来起居室,南向两间卧室套房(带卫生间),南边阳台处连通;北边两间卧室套房(带卫生间)、一间公共衣帽间;东边一设备阳台;

这栋三层英式别墅,处处都是有仪式感的生活细节

三层平面:布置格局与二层一致,楼梯上来是起居室(外连南向大露台),两侧各一间南向卧室套房(带卫生间);北向两间卧室套房(带卫生间),一间公共衣帽间;东边一阳台(设备阳台)、一露台;

这栋三层英式别墅,处处都是有仪式感的生活细节

东南角度鸟瞰

这栋三层英式别墅,处处都是有仪式感的生活细节

西北角度鸟瞰

这栋三层英式别墅,处处都是有仪式感的生活细节

南立面透视

这栋三层英式别墅,处处都是有仪式感的生活细节

东立面透视

这栋三层英式别墅,处处都是有仪式感的生活细节

北立面透视

这栋三层英式别墅,处处都是有仪式感的生活细节

西立面透视

这栋三层英式别墅,处处都是有仪式感的生活细节

东南角度近景透视

这栋三层英式别墅,处处都是有仪式感的生活细节

东北角度透视


推荐阅读:贵州品牌网

 

(正文已结束)

(编辑:喜羊羊)

免责声明及提醒:此文内容为本网所转载企业宣传资讯,该相关信息仅为宣传及传递更多信息之目的,不代表本网站观点,文章真实性请浏览者慎重核实!任何投资加盟均有风险,提醒广大民众投资需谨慎!